2ЛП 25-19-4 лкш

2ЛП 25-19-4 лкш
О товаре
Цена по запросу
ОПИСАНИЕ
Лестничные площадки ребристые 2ЛП 25-19-4 лкш обязательный элемент любого высотного здания. В конструкцию входят марши или блок ступеней, площадки, крепежные детали, при этом марш и площадки могут быть выполнены в виде единой конструкции. В зависимости от типа здания и его конструкции могут быть использованы лестничные площадки ребристые 2ЛП 25-19-4 лкш .
Это железобетонные изделия особой формы, которые отвечают требованиям по прочности, надежности и долговечности. За счет этих параметров достигается высокая безопасность эксплуатации готового сооружения. Могут быть применены ребристые площадки для панельных, блочных и кирпичных зданий. Лестничная платформа делит марш на две части, что позволяет облегчить подъем между этажами и повысить безопасность.
Максимальное число ступенек в марше – 18 штук, далее в строгом соответствии действующим стандартом ГОСТ 9818-85 устанавливают лестничную платформу. В каждом конкретном случае ЖБ-изделия подбираются в одной чрезмерной группе. Для одинаковых лестничных маршей лестничные площадки могут иметь различную длину.
1.Варианты написания маркировки изделий.
Обозначают ребристые площадки 2ЛП 25-19-4 лкш согласно ГОСТ 9818-85 и записывают цифробуквенную кодировку разными вариантами:
1. 2ЛП 25-19-4 л;
2. 2ЛП 25-19в-4 к;
3. 2ЛП 25-19в-4 кш;
4. 2ЛП 25-19-4 лкш;
5. 2ЛП 25-19-4;
6. 2ЛП 25-19-4 ш;
7. 2ЛП 25-19-4 лк;
8. 2ЛП 25-19в-4.
2.Основная сфера применения.
Основное отличие ребристых площадок 2ЛП 25-19-4 лкш от плоских прямых (например, тип ЛМ) наличием специальных пазов и выемок для стыковки с лестничными маршами и другими элементами. Средняя высота этажа – 2,8 метра. Для данных площадок конструктивно не предусматривается наличие фризовых ступеней.
Основное предназначение площадок с ребрами – соединение лестничных маршей и в качестве входной платформы. Стоит отметить, что площадки данного типа могут иметь отверстие для установки мусоропровода. Поверхность плиты обрабатывается и может быть отделана керамической плиткой. Допускается шлифовка. Все типы обработки лестничных изделий указываются в маркировке дополнительной буквенной комбинацией.
3.Обозначение маркировки изделий.
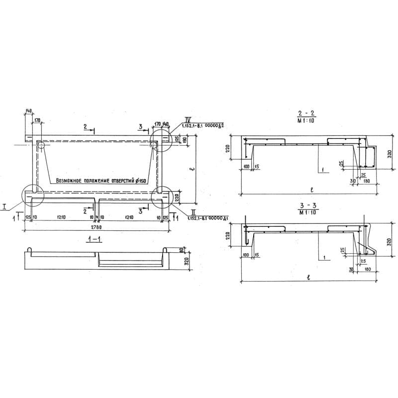
Площадка ребристая марки 2ЛП 25-19-4 лкш выпускается длиной – 2780 , ширина – 1900 , высотой - 320 , массой – 1530. Согласно ГОСТ 9818-85 в маркировку включены тип изделия и основные размеры.
1. 2ЛП - лестничные площадки ребристые;
2. 25 - длина, указывается в дц.;
3. 19 - ширина, указывается в дц.;
4. 4 - нагрузка;
5. л - левое исполнение;
6. к - наличие консолей;
7. Дополнительными буквами указывают тип поверхности – "ш"-шлифованная, "м"-мозаичная, "г" - глянцевая;
"к" - облицованная керамической плиткой.
Знаки наносят на боковую грань черной краской, также указываются дата производства изделия и его масса.
2ЛП 25-19-4 лкш имеют следующие параметры:
1. Длина – 2780 ;
2. Ширина – 1900 ;
3. Высота – 320 ;
4. Геометрический объем – 1,6902 ;
5. Объем бетона – 0,612 ;
6. Масса – 1530.
4.Основные материалы для изготовления и их характеристики.
В качестве исходного сырья для ребристых площадок 2ЛП 25-19-4 лкш используют только бетон тяжелых марок. Класс по прочности на сжатие должен соответствовать пределами – В15. Уплотняют бетонную смесь в специальных вибрационных установках. Вибропрессование – оптимальная технология для изготовления площадок для лестниц. Этот способ позволяет с высокой вероятностью избавиться от всех пузырьков воздуха и получить однородную смесь высокой плотности.
Высокая прочность и жесткость конструкции согласно проекту достигается также за счет копирования. Используется высокомарочная сталь в виде горячекатаной проволоки или стержневой арматуры с предварительным напряжением класса стали A-III и Вр-1 согласно ГОСТ 5781-82. Используется только специальная качественная сталь, так как площадки воспринимают достаточно большие нагрузки, ударные и сжимающие деформации. Сварные каркасы заполняют бетонной смесью с расчетом, что верхний слой будет покрывать арматуру не менее чем на 30 мм. Эксплуатация с оголенными арматурными выпусками, со сколами на поверхности – не допускается. В тело плиты дополнительно закладывают строповочные петли, может быть проектом предусмотрено наличие гнезд.
Бетон для ребристых площадок должен отвечать определенным требованиям. В состав вводят гравийный щебень мелких фракций (контролируется прочность, лещадность), песок речной мелкий, пластифицирующие и воздухововлекающие добавки. При помощи этих компонентов достигается высокая стойкость к действию внешней среды.
Площадки ребристые 2ЛП 25-19-4 лкш могут использоваться при отрицательных температурах (расчетные параметры достигают до -55 градусов). Морозостойкость достигает для данных изделий до 150 циклов полного замораживания и последующего размораживания. Высокая стойкость к разрушительному действию внешней среды позволило существенно расширить сферу применения платформ 2ЛП 25-19-4 лкш . Качественные исходные материалы позволяют получить прочные изделия, которые обеспечат высокую пропускную способность при минимальной истираемости поверхности.
5.Транспортировка и хранение.
Транспортируют плиты в горизонтальном положении с дополнительным закрепление каждого элемента, также послойно укладывают деревянные доски толщиной 30 мм. Погрузка и разгрузка производится согласно правилам техники безопасности. Навал изделий не допускается. Хранение осуществляется в штабелях.