ПБ 90-12-8







ПБ 90-12-8
О товаре
Цена по запросу
ОПИСАНИЕ
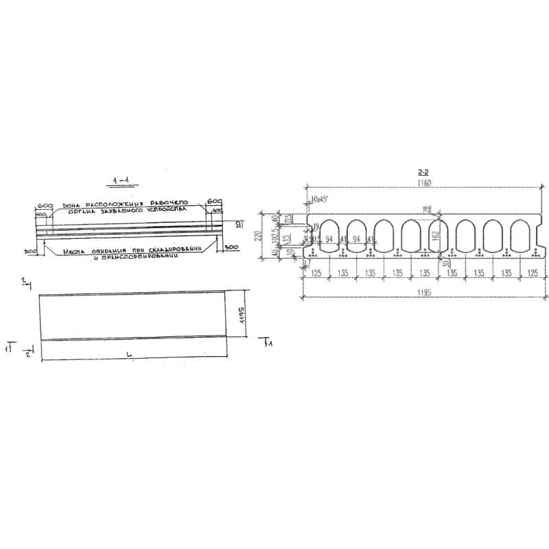
Плита перекрытия многопустотная ПБ 90-12-8 представляет собой универсальное предварительно-напряженное строительное изделие прямоугольной формы стендового безопалубочного формирования с высотой 220мм и с наличием многочисленных пустот. Индустриальные изделия запроектированы по Серии ИЖ 568-03 и широко применяются при возведении жилых, общественных и индустриальных зданий. Элементы рассчитаны на применение в зданиях с обычной средой. Плиты выполняются из особо прочного материала и очень просты в установке, благодаря им создается ровный пол, они сохраняют отлично тепло. Рабочие чертежи представлены в Серии ИЖ 568-03.
Расшифровка маркировки
Выпущенные плиты на заводе сборного железобетона, получают маркировочную надпись, которая состоит из совокупности букв и цифр. Марку можно встреть на одной из боковых сторон железобетонной конструкции. За счет шифра облегчается поиск необходимой строительной продукции на складской площадке. Чтобы более детально изучить особенности данных индустриальных изделий, рассмотрим марку ПБ 90-12-8 согласно Серии ИЖ 568-03:
1. ПБ - плита многопустотная;
2. 90 - длина;
3. 12 - ширина;
4. 8 - нагрузка.
Все маркировочные шифры наносятся влагоустойчивой краской с помощью штампов и трафаретов. Рядом с маркой ставят номер партии, дату выпуска, массу плиты в килограммах и печать отдела технического контроля. Заводские марки нельзя изменять и вносить какие-либо дополнения.
Основные характеристики и изготовление
Индустриальные изделия ПБ 24-12-10 выпускаются на специализированном предприятии с соблюдением всех требований Серии ИЖ 568-03 и ГОСТ 9561-91. За прочную и надежную основу принимается бетон класса В30. Показатели морозостойкости и водонепроницаемости устанавливается в индивидуальном порядке и зависят от среды эксплуатации. Конструкции выпускаются предварительно напряженными, поэтому они армируются высокопрочной проволокой Bp-II. Для удобства монтажа и транспортировки используются монтажные петли. Все составляющие металлические детали проходят обработку от коррозии, которая предотвращает появление ржавчины.Отпускная прочность бетона нормируемая должна составлять не менее 70 % от проектной марки. Предел огнестойкости панелей составляет один час. Согласно ГОСТ 13015.3-81 железобетонные изделия должны пройти ряд контрольных проверочных испытаний. Индустриальные элементы проверяются на прочность, жесткость и трещиностойкость. Особое внимание уделяется геометрическим характеристикам и поверхности. Поверхность должна быть ровной и гладкой, а так же без вмятин, пятен и других дефектов. После всех необходимых проверок, каждая новая партия железобетонных изделий получает сертификат соответствия, который содержит краткую информацию о сырье и о производителе. Вся железобетонная продукция поставляется к заказчику с необходимым комплектом документов.
Хранение и транспортировка
Плиты перекрытия многопустотные ПБ 90-12-8 хранятся и транспортируются в рабочем положении согласно всем требованиям регламента Серии ИЖ 568-03. Элементы складируют в штабеля высотой не более 2,5 метров с применением деревянных инвертарных подкладок и прокладок высотой не меньше 30 мм. Перевозка осуществляется на специализированном транспортном средстве, а так же на железнодорожных платформах, надежно закрепленные фиксирующими механизмами. Индустриальные конструкции ни в коем случае нельзя сваливать на землю и перетаскивать волоком. Погрузочно-разгрузочные операции проводятся на заранее подготовленном подъездном пути.