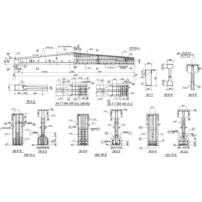
1Б 2-15-3

4vale41ky45tw11
1Б 2-15-3

О товаре

Длина:15000
Ширина:300
Высота:1415
Вес:6600
ГОСТ, Серия:-
Объем бетона:2,64 м3
Геометрический объем:6,3675 м3

Цена по запросу

ОПИСАНИЕ

Балки двускатные предварительно напряженные 1Б 2-15-3 - строительный материал, широко применяемый в промышленном строительстве. Изделия разработаны для сооружений надежного покрытия зданий пролетами 12, 15, 18 и 24 метра с шагом балок 6 м. Согласно, Серии ПК 01-06 конструкции имеют специальную двускатную форму. Высокая прочность изделия достигается за счет армирования предварительно напрягаемой стержневой или прядевой арматуры. Балки пролетами 12, 15 и 18 метров могут применяться для обустройства односкатной кровли с опорой на специальные опорные подушки. Для возможности крепления электропроводки, балки оснащаются отверстиями 50 мм., каждые 1000 мм. Данные изделия могут использоваться как в неагрессивной, так и агрессивной среде. При эксплуатировании в агрессивной среде, дополнительно разрабатываются мероприятия по защите.

1.Расшифровка маркировки

Разработана лаконичная маркировка, для условного обозначения балки. Она состоит и буквенных и числовых знаков. Рассмотрим подробнее расшифровку марки 1Б 2-15-3 где:

1. - тип конструкции - балка с напрягаемой арматурой;

2. 2 - используется проволочная напрягаемая арматура;

3. 15 - длина пролета;

4. 3 - нагрузка.

Марки балок применяемых в условиях агрессивной среды, могут содержать дополнительный буквенный индекс, указывающий на плотность бетона.

2.Материалы и производство

Выпускаются балки двускатные в заводских условиях, с соблюдением всех технологических норм. Основными материалами, используемыми для изготовления изделий, являются бетон и стальная арматура. Принято использовать тяжелый конструктивный бетон марок 300, 400 и 500. Компоненты для приготовления бетонной смеси должны быть сертифицированы, и подтверждены соответствующими документами. Дополнительные требования по плотности бетона и другим показателям принимаются в конкретном проекте. В качестве рабочей напрягаемой арматуры принято использовать высокопрочную проволоку диаметром 5мм ГОСТ 8480-57, или низколегированную сталь периодического профиля класса 30ХГ2С ГОСТ 5058-57, или семи проволочные пряди №15. Натяжение арматуры производится до бетонирования. Для сварных каркасов применяется низкоуглеродистая сталь марки 25Г2С ГОСТ 6727-53. Для изделий, которые будут применяться в условиях агрессивной среды, разрабатываются дополнительные мероприятия по защите. Формование конструкций производят в рабочем положении. Бетонируют изделия не прерывно, но не более 2-х часов. К заказчику отправляются элементы, которые достигли достаточной бетонной прочности, и прошли испытания и проверки отделом технического контроля. Изделия поставляют в сопровождении паспорта качества, данный документ является подтверждением, что изделия изготовлены с соблюдением действующих нормативных стандартов.

3.Транспортировка и хранение

Хранят балки на складе готовой продукции. Изделия, которые не прошли проверку, должны храниться отдельно. Температурный режим хранения нормативный документ не предусматривает. Балки следует хранить рассортированные по маркам и выпущенным партиям. Конструкции складируют в вертикальном положении с обязательной опорой на инвентарные изделия. При транспортировании изделия должны быть надежно зафиксированы, чтобы исключить их непроизвольное поперечное или продольное смещение. Подъем балок производится за отверстия расположенные под верхними полками. Комплекс погрузочно-разгрузочных работ производить с соблюдением техники безопасности и технологических правил. Не допускается свободное падение изделий.