3К 17-15

3К 17-15
О товаре
Цена по запросу
ОПИСАНИЕ
Контурные блоки 3К 17-15 относятся к железобетонным изделиям, применяемым в мостостроении в качестве элемента унифицированных сборно-монолитных опор. Их конструкция проста и надёжна: блоки располагаются строго с внешней стороны, составляя контур будущей опоры, затем пустое пространство в центре заливается бетонной смесью, т.е. замоноличивается.
Изделия марки 3К 17-15 относятся к классу концевых контурных блоков. Такое название связано с тем, что в конструкциях опор они выступают в роли замыкающего контур элемента. На сегодняшний день номенклатурный ряд концевых блоков представлен шестью типоразмерами, что отражено в различных вариантах написания маркировки.
1. Варианты маркировки
Требования к маркировке концевых контурных блоков представлены в Серии 3.501.1-150. Современные нормы предусматривают следующие варианты обозначения:
1. 3К 11-15;
2. 3К 11-25;
3. 3К 14-15;
4. 3К 14-25;
5. 3К 17-15;
6. 3К 17-25.
2. Основная сфера применения
Контурные блоки 3К 17-15 широко применяются при возведении опор под железнодорожные однопутные мосты, пролегающие через постоянные водотоки или расположенные на суходолах. Одним из основных преимуществ использования таких изделий является их приспособленность к широкому спектру климатических зон, начиная от умеренного пояса и заканчивая районами с особо суровыми климатическими условиями. Данное свойство достигается возможностью изготовления блоков из разных марок бетона, поэтому можно подобрать оптимальный материал практически для любого региона Российской Федерации. Такие конструкции успешно эксплуатируются в несейсмичных районах, а отдельные марки способны выдержать сейсмическую активность величиной до 9 баллов. Выбрать необходимое изделие вам поможет знание расшифровки маркировочного обозначения.
3. Обозначение маркировки изделия
Как уже было сказано выше, маркировка концевых контурных блоков принята по Серии 3.501.1-150. Основной задачей буквенно-цифровой комбинации является точная идентификация изделия по типоразмеру и основным качественным характеристикам главного его компонента — бетонной смеси. Также в обязательном порядке указывается его наименование в сокращённом виде. Таким образом, из обозначения 3К 17-15 получаем следующую информацию:
1. 3К — тип изделия (3 — концевой, К — контурный блок).
2. 17 — размер блока по фасаду (выражен в дециметрах).
3. 15 — высота блока (также в дм).
Кроме того, после базового обозначения, расшифровка которого приведена выше, ставится ещё одна цифра — от 1 до 9. Её функция заключается в указании состава бетонной смеси — каждому из девяти индексов присвоено уникальное сочетание марок бетона по прочности на сжатие, морозостойкости и водонепроницаемости (подробнее — см. Серия 3.501.1-150, Вып. 5, Таб. 3)
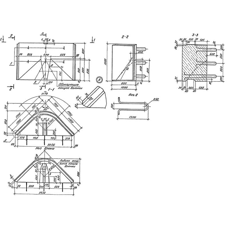
Контурный блок 3К 17-15 имеет следующие основные параметры:
Длина = 2432;
Ширина = 1000;
Высота = 1500;
Вес = 4900;
Объем бетона = 2,04;
Геометрический объем = 3,648.
4. Изготовление и основные характеристики
Изготовление контурных блоков 3К 17-15 принято из тяжёлых бетонных смесей. Основными её компонентами являются цемент и щебень, причём крупность последнего должна лежать в пределах 40 мм. Марка бетона по прочности на сжатие может быть от B25 до B45, по морозостойкости — F100-F500, а по водонепроницаемости — W6 или W8. Обычно используют различные их сочетания; в зависимости от конкретных условий строительства и эксплуатации выбирается один из 9 их возможных вариантов. Процесс бетонирования контурных блоков происходит в металлических опалубках, при этом будущее изделие располагается лицевой поверхностью вниз. Одним из этапов производства является тепловлажная обработка, режим которой устанавливается согласно СНиП III-43-75. Готовое изделию имеет категорию бетонное поверхности А6.
Конструкции в обязательном порядке снабжаются анкерными и строповочными петлями, для изготовления которых принята сталь класса А-I по ГОСТ5781-82, марок Ст3сп и Ст3пс.
5. Транспортировка и складирование
Одним из основных документов, устанавливающих правила транспортировки и хранения контурных блоков 3К 17-15, является ГОСТ 13015.4-84. Осуществлять перевозку данных изделий можно как железнодорожным, так и грузовым автотранспортом. При складировании их необходимо размещать на ровной поверхности лицевой стороной вниз. При этом важно использовать брусчатые деревянные прокладки. Возможно размещение в 2 яруса. При таком способе хранения между ними устанавливаются инвентарные прокладные устройства, высота которых должна быть больше длины анкерных арматурных выпусков. Основным условием грамотного размещения контурных концевых блоков является обеспечение свободного доступа к ним кранов, а также транспортных средств.