Лотковые элементы

496x70x11501РП 115-50
Цена по запросу

490x290x5801КТ 58-49-25
Цена по запросу

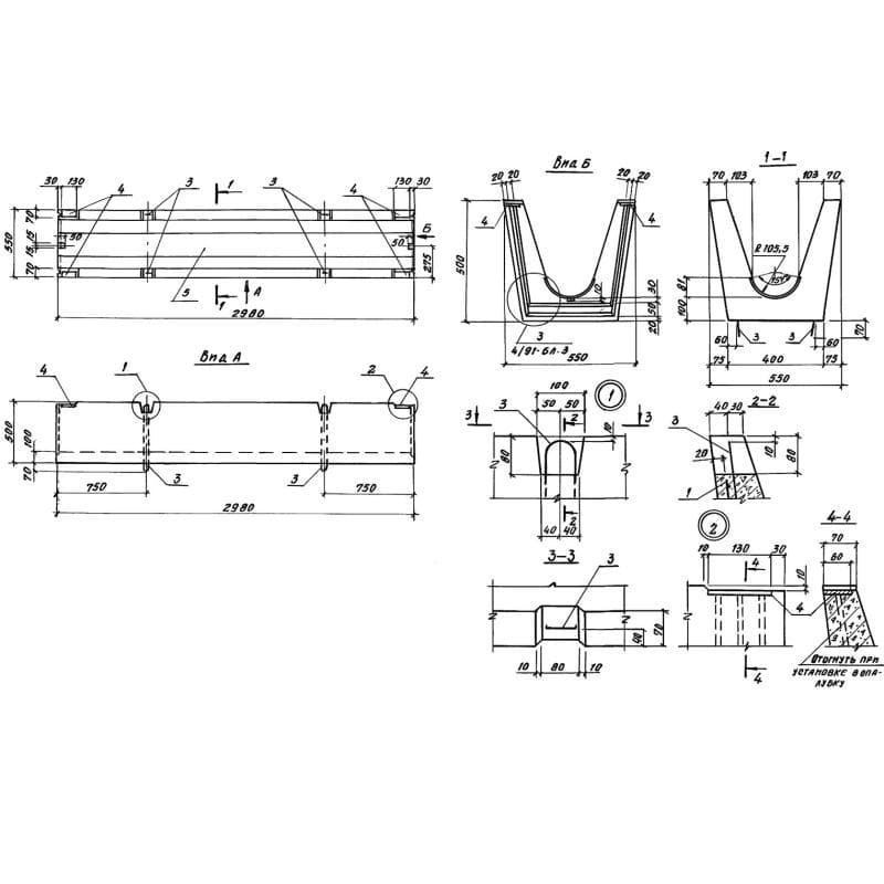
550x750x59702ЛК 597-55-75
Цена по запросу

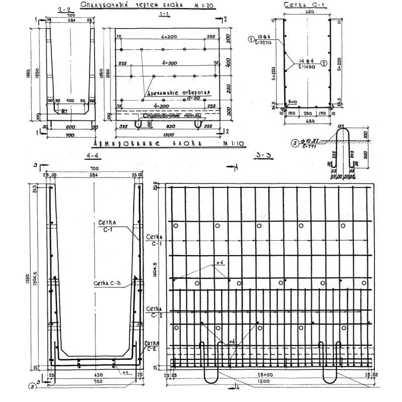
700x1350x15002Н 1,25
Цена по запросу

496x70x11502РП 115-50
Цена по запросу

550x500x29801ЛК 298-55-50
Цена по запросу

1000x500x29802ЛК 298-100-50
Цена по запросу

2600x700x19801ЛК 198-260-70
Цена по запросу

1200x530x29801ЛК 298-120-53
Цена по запросу

496x100x14002РП 140-50
Цена по запросу

700x500x59702ЛК 597-70-50
Цена по запросу

576x70x10001РП 100-58
Цена по запросу